13 photos
Appartement · Location Roubaix (59100) 3 pièces · 75m²
863 €
par mois / CCRéférence FL0848370
Disponible immédiatement
Appartement
Afficher plus
Visite virtuelle
Découvrez le logement dans un espace 3D à 360° !
Les plus
Balcon
Ascenseur
Le bien
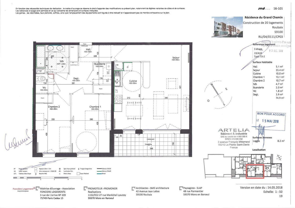
Type de bien
Appartement
Surface
75m²
Nombre de pièce
3
Meublé
Non
Étage
3ème
Refait à neuf
Non
Parquet
Non
Le prix
Loyer
863 € par mois / CC
Charges
127 € par mois
Honoraires
0 €
Part honoraires état des lieux
0 €
Dépôt de garantie
736 €
Les performances énergétiques
au 02/11/2025Diagnostic de performance énergétique (DPE)
Diagnostic de performance énergétique (DPE) : C - 107 kWh/m².an
Indice d’émission de gaz à effet de serre (GES)
Indice d’émission de gaz à effet de serre (GES) : C - 21 kgeqCO2/m².an
Géorisque
Les informations sur les risques auxquels ce bien est exposé sont disponibles sur le site Géorisques https://www.georisques.gouv.fr
Ce bien vous intéresse ?
Remplissez ce formulaire de contact
*Champs obligatoires
LAMY, en sa qualité de responsable de traitement, collecte et réalise des traitements de données à caractère personnel pour la mise en place et la gestion de ses relations avec ses clients et prospects. Ces traitements sont fondés sur la base de votre consentement préalable. Les données collectées sont destinées aux services concernés de Lamy et plus généralement à une entité du Groupe EVORIEL et le cas échéant à ses sous-traitants et prestataires. Les sous-traitants et prestataires en question sont soumis à une obligation de confidentialité et ne peuvent utiliser vos données qu'en conformité avec nos dispositions contractuelles et la législation applicable. Vous avez la possibilité d’exercer vos droits pour accéder, rectifier, effacer vos données, limiter leurs traitements, vous y opposer et demander la portabilité de celles-ci en suivant la procédure prévue sur le lien ici ou par courrier postal à l’attention du Délégué à la Protection des Données – LAMY – 19 rue de Vienne – TSA 10034 – 75801 PARIS Cedex 08, accompagné d’une copie d’un titre d’identité. Vous pouvez également adresser une réclamation auprès de la CNIL – 3 place de Fontenoy – TSA 80715 – 75334 PARIS Cedex 07.
Localisation du bien
Services partenaires
La solution intelligente pour tous vos contrats et abonnements
Papernest, la solution pour se décharger des démarches administratives qui pèsent sur le déménagement
Besoin d‘assurer votre futur logement ?
Avec Bélier Assurances, assurez votre futur logement en quelques clics
Les engagements Lamy
À l’écoute, attentif à vos besoins
Nous vous répondons sous 48h
Des moments de vie, des envies !
Des solutions d’accompagnement sur-mesure pour vous permettre de trouver le logement qui vous correspond.
Du sur-mesure, bien sûr !
Un conseiller unique et dédié qui vous accompagne de la visite du bien à la remise des clés.
Toujours avec vous
Votre espace client en ligne accessible 24h/24 - 7j/7 pour faciliter votre installation et votre quotidien dans votre futur logement.
Villes du département
- Annoeullin 59112
- Anzin 59410
- Armentieres 59280
- Beuvrages 59192
- Comines 59560
- Conde Sur L Escaut 59163
- Emmerin 59320
- Erquinghem Lys 59193
- Faches Thumesnil 59155
- Halluin 59250
- Le Quesnoy 59530
- Lille 59000
- Lille 59160
- Lille 59260
- Lille 59777
- Lille 59800
- Linselles 59126
- Loos 59120
- Marly 59770
- Marquette Lez Lille 59520
- Mouvaux 59420
- Ronchin 59790
- Roncq 59223
- Seclin 59113
- St Amand Les Eaux 59230
- St Saulve 59880
- Tourcoing 59200
- Valenciennes 59300
- Wambrechies 59118
- Wasquehal 59290
